Island Survey Systems

Professional Elevation Drawings For Planning & Design...

At Island Survey Systems, we produce accurate and detailed Elevation Drawings to support architectural design, planning applications, and building projects across the Isle of Wight, Hampshire, and the South of England.

Using advanced 3D Laser Scanning technology, we create reliable elevation drawings that clearly represent a house, home, or building, forming a critical part of the design and planning process.

What Are Elevation Drawings?

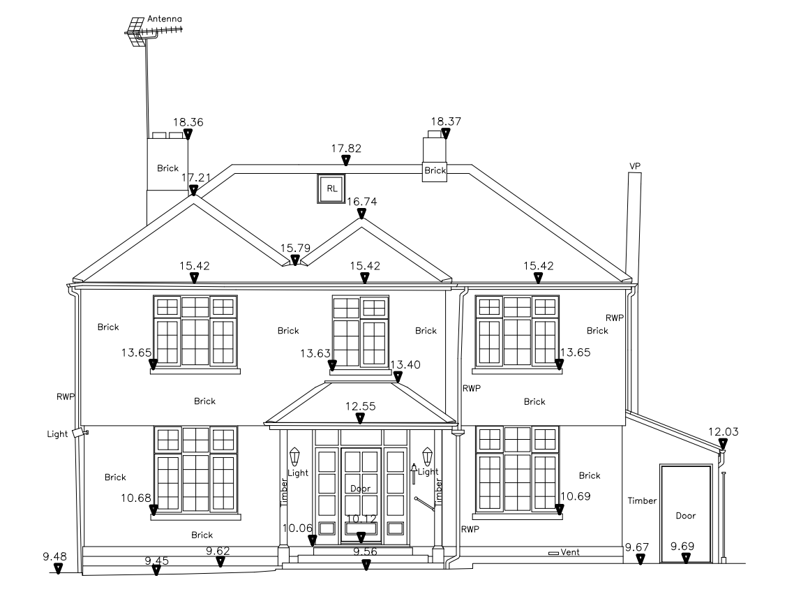
Elevation Drawings are scaled architectural drawings that show the vertical faces of a building or home, illustrating how it appears from the outside. These drawings typically include front, rear, and side elevations and may be produced alongside plans and sections to give a complete understanding of the structure.

Elevation drawings are commonly required for planning permission, architectural design work, renovations, extensions, and new developments, ensuring all external features are clearly defined and accurately measured.

House Elevation Drawings - Building Elevation Drawings - Island Survey Systems Ltd
House Elevation Drawings - Building Elevation Drawings - Island Survey Systems Ltd

Our Elevation Drawing Process

Following an on-site 3D Laser Scan survey, our surveyors translate the captured data into precise architectural elevation drawings. This approach ensures all drawings are created from accurate, real-world measurements rather than assumptions.

The resulting elevation drawings integrate seamlessly with plans and sections, supporting architects, designers, and planners with dependable information that helps reduce revisions and speed up project approval and delivery.

Why Choose Island Survey Systems For Elevation Drawings?

  • Accurate elevation drawings created using 3D Laser Scanning technology.
  • Clear, scaled drawings suitable for architecture, planning, and permission submissions.
  • Ideal for houses, homes, and all types of buildings.
  • Elevation drawings that align with plans and sections for coordinated design work.
  • Experienced surveyors with attention to architectural detail.
  • Fast turnaround and reliable digital output formats.

Download A Sample Elevation Survey

To view an example of the detail and accuracy we provide, download a sample here: Download Sample Elevation Survey

Get A Quote For Your Elevation Drawings

If you’re preparing a planning application or architectural design and need accurate Elevation Drawings for a house, home, or building, Contact Island Survey Systems today, to discuss your requirements with one of our experienced surveyors.